ID CP2826349

COMISION 0% | Apartament 2 Camere | 58 mp | Zona Giroc

ID CP2826349

120,000 €

Apartament cu 2 camere de vânzare
Giroc
58 mp
2022

COMISION 0% pentru cumpărător!

Vă propun spre vânzare un apartament modern, luminos și eficient compartimentat, situat in Giroc, într-un bloc nou, construit în 2022, cu standarde moderne și clasificare energetică A — ideal pentru cei care își doresc confort, calitate și acces rapid către Timișoara.

LOCALIZARE

Apartamentul este amplasat într-o zonă foarte căutată din Giroc, pe o stradă liniștită, aproape de magazine, parc, mijloace de transport și toate facilitățile necesare unei vieți moderne. Ansamblu rezidențial nou, bine întreținut, cu acces facil către centrul Timișoarei.

DETALII PROPRIETATE

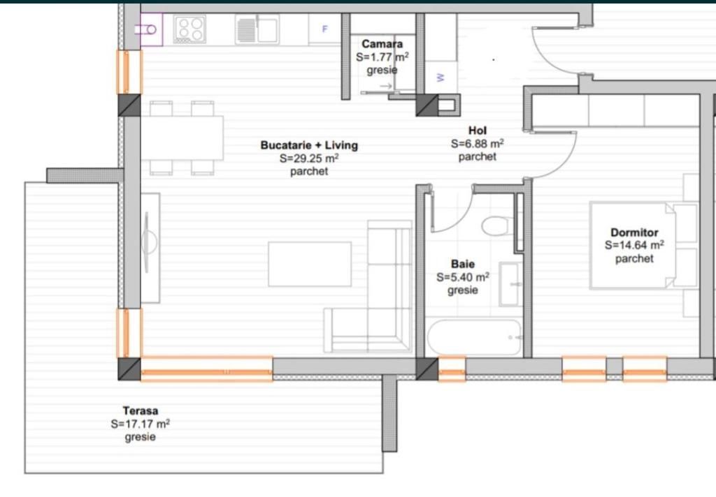
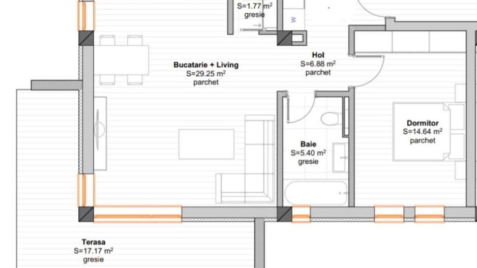
Apartamentul dispune de 58 mp utili + terasă generoasă de 18 mp, situat la etajul 5/5, într-un imobil prevăzut cu lift. Se vinde nemobilat, cu parcare subterană inclusă în preț, iar compartimentarea este ideală pentru o persoană, un cuplu sau chiar pentru investiție: 2 camere (dormitor separat și living cu bucătărie open-space), o baie cu geam natural, terasă spațioasă pentru relaxare.

Construcție solidă, bloc nou 2022, izolat, cu eficiență ridicată.

DOTĂRI ȘI FINISAJE

Locuința beneficiază de încălzire în pardoseală, ferestre PVC cu geam termopan, uși interioare din PVC, finisaje premium și instalații moderne. Încadrată în clasa energetică A, asigură costuri reduse de întreținere și confort termic excelent pe tot parcursul anului.

TERASĂ

Terasa de 18 mp este perfectă pentru amenajare ca zonă de relaxare, spațiu verde privat sau loc pentru luat masa în aer liber.

PARCARE

Apartamentul se vinde cu 1 loc de parcare subteran, inclus în preț — un avantaj important într-o zonă în plină dezvoltare.

PREȚ: 120.000 € (cu parcare inclusă)

Un apartament modern, într-o zonă premium din Giroc, ideal pentru locuință personală sau investiție.

Citește mai mult

  • Tip apartament
    Apartament
  • Compartimentare
    Decomandat
  • Număr camere
    2
  • Dormitoare
    1
  • Număr bucătării
    1
  • Număr băi
    1
  • Geam la baie
    Da
  • Etaj
    5
  • Suprafață utilă
    58 mp
  • Suprafață construită
    70 mp
  • Suprafață terasă
    18 mp
  • Disponibilitate
    Imediat
  • Număr terase
    1
  • Număr locuri parcare
    1
  • Imobil
    Bloc de apart.
  • Stadiu construcție
    Finalizată
  • An construcție
    2022
  • Construcție nouă
    Da
  • Număr etaje clădire
    5

Facilități

Apă
Apometre
Bucătărie deschisă
Canalizare
CATV
Centrală proprie
Contor căldură
Contor electric
Contor gaz
Curent
Ferestre PVC
Gaz
Geamuri termopan
Gresie
Iluminat stradal
Încălzire prin pardoseală
Internet
Izolație exterioară
Izolație interioară
Lift
Mijloace de transport în comun
Nemobilat
Parcare acoperită
Parchet
Străzi asfaltate
Telefon
Ușă intrare PVC
Uși interior PVC
Daniel Lascu - TRUST
Daniel Lascu
Agent Imobiliar

+40 746 631 124


Solicită chiar acum o vizionare
Telefon
Sună acum Solicită vizionare
Necesare:

Site-ul nu poate funcționa corect fără aceste cookie-uri. Vezi cookie-urile

Statistică:

Strângem statistici anonime despre voi, vizitatorii unici, pentru a vă îmbunătăți experiența dumneavoastră. Vezi cookie-urile

Marketing:

Pentru a ne promova mai eficient serviciile noastre, folosim cookies pentru a vă identifica și a vă oferi proprietăți și servicii personalizate. Vezi cookie-urile

Acest site folosește cookies, află detalii. Alege ce tipuri de cookies dorești să permitem: